Hochwertiges Niedrigenergiehaus mit 4 Zimmern, Sonnengarten, Terrasse und Parkplatz
Erzherzog Karl Straße 36, 1220 Wien
Lage
Erzherzog Karl Straße 36, 1220 Wien
Fläche
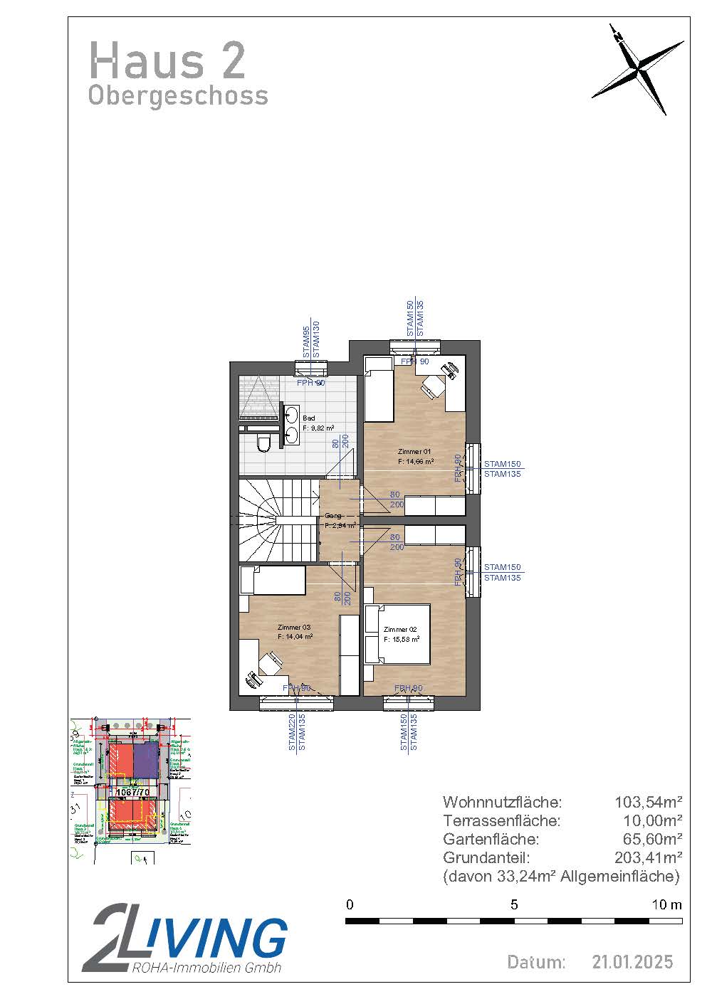
Wohnfläche: 103,54m²
Kosten
Kaufpreis: 578900€
Käuferprovision: provisionsfrei
Immobilienbeschreibung
Beschreibung
Gebaut von Firma 2Living Roha-Immobilien GmbH, entstehen insgesamt 2 Doppelhäuser mit 4 Wohneinheiten, die in hochwertiger Ziegelmassivbauweise errichtet werden.
Jedes Haus verfügt über ein Erdgeschoss und ein Obergeschoss sowie über einen privaten Garten und KFZ-Stellplatz.
Die nachhaltige und ökologische Bauweise mit einem 38 cm gedämmten Ziegelmauerwerk und einer Edelputzfassade sorgt für ein perfektes Wohnklima.
Sie können aktuell noch auswählen, ob Sie belagsfertig oder schlüsselfertig das Haus übernehmen möchten. Der angegebene Kaufpreis bezieht sich auf die Variante belagsfertig.
Wichtige Highlights:
Energieeffizienz: Modernste Luft-Wärmepumpen für Heizung und Warmwasser in Kombination mit Fußbodenheizung sparen Betriebskosten und bieten umweltfreundliches Wohnen.
Sommerliche Kühlung: Dank der passiven Kühlfunktion der Wärmepumpe wird eine angenehme Reduktion der Raumtemperatur um ca. 2-3 Grad gewährleistet.
Hochwertige Fenster: Kunststoff-Alu-Fenster mit 3-fach Isolierverglasung
Elektrische Rollläden: bieten den perfekten Sonnenschutz
Auf Wunsch können Sie das Haus schlüsselfertig (Kaufpreis € 589.900,–) – mit luxuriöser Ausstattung kaufen:
großformatige 60x60cm Feinsteinzeugfliesen und edles Parkett verleihen den Innenräumen ein modernes und stilvolles Ambiente.
Für zusätzliche Behaglichkeit sorgt in den Badezimmern ein elektrischer Handtuchheizkörper.
Optional können Sie auch einen Zusatzkamin für feste Brennstoffe einbauen lassen.
Zusammenfassung: dieses sonnige Doppelhaus bietet durchdachtes Design, hochwertige Ausstattung und eine unschlagbare Lage im Grünen. Profitieren Sie von den Vorteilen einer Weltstadt und genießen Sie dennoch den Luxus eines naturnahen, energieeffizienten Zuhauses.
Starten Sie jetzt Ihr neues Leben in Kagran – hier treffen Wohnkomfort und Lebensqualität aufeinander!
Eigentumsform: Baurecht – der Baurechtszins beträgt € 399,14,- /Monat. Die Laufzeit beträgt 100 Jahre bis 31.12.2124.
Nebenkostenübersicht:
Grundbucheintragungsgebühr: 1,1 %
Grunderwerbsteuer: 3,5 %
Vertragserrichtungskosten: 1,5% exkl. Ust.
Provisionsfrei: Provision bezahlt der Abgeber
Jedes Haus verfügt über ein Erdgeschoss und ein Obergeschoss sowie über einen privaten Garten und KFZ-Stellplatz.
Die nachhaltige und ökologische Bauweise mit einem 38 cm gedämmten Ziegelmauerwerk und einer Edelputzfassade sorgt für ein perfektes Wohnklima.
Sie können aktuell noch auswählen, ob Sie belagsfertig oder schlüsselfertig das Haus übernehmen möchten. Der angegebene Kaufpreis bezieht sich auf die Variante belagsfertig.
Wichtige Highlights:
Energieeffizienz: Modernste Luft-Wärmepumpen für Heizung und Warmwasser in Kombination mit Fußbodenheizung sparen Betriebskosten und bieten umweltfreundliches Wohnen.
Sommerliche Kühlung: Dank der passiven Kühlfunktion der Wärmepumpe wird eine angenehme Reduktion der Raumtemperatur um ca. 2-3 Grad gewährleistet.
Hochwertige Fenster: Kunststoff-Alu-Fenster mit 3-fach Isolierverglasung
Elektrische Rollläden: bieten den perfekten Sonnenschutz
Auf Wunsch können Sie das Haus schlüsselfertig (Kaufpreis € 589.900,–) – mit luxuriöser Ausstattung kaufen:
großformatige 60x60cm Feinsteinzeugfliesen und edles Parkett verleihen den Innenräumen ein modernes und stilvolles Ambiente.
Für zusätzliche Behaglichkeit sorgt in den Badezimmern ein elektrischer Handtuchheizkörper.
Optional können Sie auch einen Zusatzkamin für feste Brennstoffe einbauen lassen.
Zusammenfassung: dieses sonnige Doppelhaus bietet durchdachtes Design, hochwertige Ausstattung und eine unschlagbare Lage im Grünen. Profitieren Sie von den Vorteilen einer Weltstadt und genießen Sie dennoch den Luxus eines naturnahen, energieeffizienten Zuhauses.
Starten Sie jetzt Ihr neues Leben in Kagran – hier treffen Wohnkomfort und Lebensqualität aufeinander!
Eigentumsform: Baurecht – der Baurechtszins beträgt € 399,14,- /Monat. Die Laufzeit beträgt 100 Jahre bis 31.12.2124.
Nebenkostenübersicht:
Grundbucheintragungsgebühr: 1,1 %
Grunderwerbsteuer: 3,5 %
Vertragserrichtungskosten: 1,5% exkl. Ust.
Provisionsfrei: Provision bezahlt der Abgeber
Ausstattung
Eckdaten
Objektnummer
145
Nutzungsart
wohnen
Objektart
Doppelhaus
Etage
Lage im Haus
Zustand
Erstbezug
Zimmeranzahl
4
Schlafzimmer
3
Badezimmer
1
Wohnfläche
Freifläche
103,54m²
75m²
Gesamtfläche
103,54m²
Eckdaten
Ausweistyp
Energieausweis
Baujahr
Energieverbrauch
2025/2026
39
Energieträger
Luftwärmepumpe, Wasser- Elektro
Haupt-Energiequelle
Strom
Heizungsart
Luftwärmepumpe
Energieeffizienzklasse
B/A++
Lage
Das Projekt, bestehend aus zwei Doppelhäusern, also insgesamt 4 Wohneinheiten wird in der Erzherzog-Karl
Straße 36, in 1220 Wien von der Fa. 2LIVING ROHA Immobilien GmbH entwickelt und gebaut. Es handelt sich um einen Baurechtsgrund des Stifts Klosterneuburg mit 100 Jahren Laufzeit (bis
31.12.2124), mit der Option zur Verlängerung.
Dieses exklusive Doppelhaus-Projekt liegt in begehrter Lage im Herzen von Kagran. Die Umgebung überzeugt mit einer perfekten Mischung aus urbanem Leben und zahlreichen Freizeitmöglichkeiten in der Natur.
Die Nähe zum Donauzentrum, Donauinsel, Strandbad, Donaustädter Bad sowie zur Alten Donau und dem Donaupark bietet Erholung und Sportmöglichkeiten direkt vor der Haustür. Gleichzeitig profitieren Sie von einer ausgezeichneten Verkehrsanbindung durch die nahegelegene U1 sowie den Bus 93A – die Wiener Innenstadt ist in wenigen Minuten erreichbar.
Dieses exklusive Doppelhaus-Projekt liegt in begehrter Lage im Herzen von Kagran. Die Umgebung überzeugt mit einer perfekten Mischung aus urbanem Leben und zahlreichen Freizeitmöglichkeiten in der Natur.
Die Nähe zum Donauzentrum, Donauinsel, Strandbad, Donaustädter Bad sowie zur Alten Donau und dem Donaupark bietet Erholung und Sportmöglichkeiten direkt vor der Haustür. Gleichzeitig profitieren Sie von einer ausgezeichneten Verkehrsanbindung durch die nahegelegene U1 sowie den Bus 93A – die Wiener Innenstadt ist in wenigen Minuten erreichbar.
Kosten
Kaufpreis: 578900€
Käuferprovision: provisionsfrei